S39 MAISONETTE DI NUOVA COSTRUZIONE


395.000 €
131,35 m2
3 Camere
2 Bagni
1 Box / 1 Posti auto
SAN MARTINO IN RIO: A pochi passi dal Paese e in un contesto residenziale, tranquillo e di recente costruzione, l' IMMOBILIARE SANT' ORSOLA ti propone una bellissima maisonette moderna disposta su due livelli e progettata per garantire comfort, efficienza e stile.
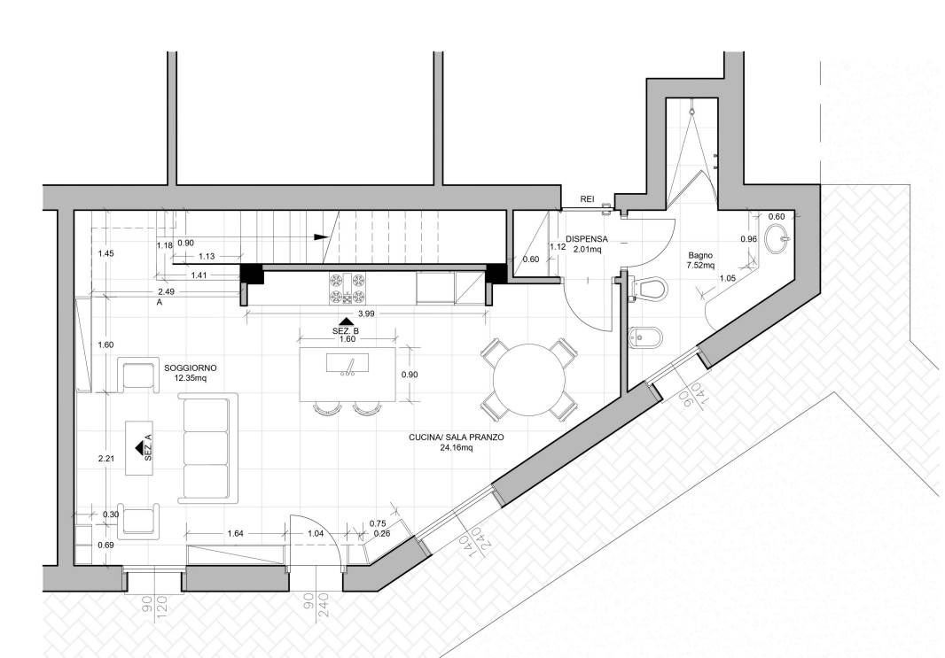
Al piano terra abbiamo ingresso su zona giorno con cucina abitabile a vista, accesso diretto al giardino di proprietà esclusiva, bagno.
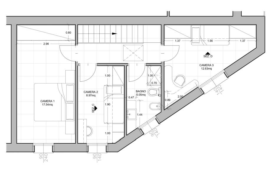
Proseguendo al primo piano troviamo la zona notte composta da tre camere da letto ed un secondo bagno; il tutto rifinito con materiali di alta qualità.
Completano la proprietà un ampio garage e cantina con collegamento all' abitazione, ed un posto auto.
Dotata di impianti di ultima generazione, classe energetica elevata e ambienti luminosi, questa maisonette è la soluzione perfetta per chi cerca spazi ben distribuiti, risparmio energetico e un tocco di eleganza.

FATTI GUIDARE ATTRAVERSO LE NOSTRE AMPIE OFFERTE DI IMMOBILI!
Siamo presenti su tutti i migliori portali immobiliari, naviga sul nostro sito www.immobiliaresantorsola.it potrai scegliere tra le nostre proposte in paesi diversi!

AGENTI PREPARATI E PROFESSIONALI
Affidati a noi! Sarai accolto da esperienza e cortesia, caratteristiche che ci vengono riconosciuti da oltre 20 anni sul territorio. La scelta della propria casa è importante, prenditi tutto il tempo che ti serve, noi saremo sempre al tuo fianco ad assisterti.

PROFESSIONISTI E TECNICI AL TUO SERVIZIO
BONUS FISCALI? Non ti preoccupare, lasciati guidare da professionisti che collaborano con noi da anni. Saranno a tua disposizione attraverso anche dei preventivi gratuiti.

MUTUI
Hai bisogno di un MUTUO? Collaboriamo con le migliori Banche del territorio, oltre che con dei veri professionisti del settore che sapranno indicarti la strada giusta per ottenere fino al 100% del valore della casa che hai scelto.

ASSISTENZA
Siamo con te fino al rogito , ma anche DOPO. Sempre disponibili per nuove consulenze e per consigliarti su come risolvere qualsiasi problema legati a una futura compravendita.

Il presente annuncio non costituisce vincolo contrattuale.
Caratteristiche principali
Codice
S39
Città
San Martino in Rio
Categoria
Villetta schiera
Locali
5
Camere
3
Bagni
2
Mq
131,35
Box
1
Mq Box
27,96
Posti auto
1
Mq Giardino
132,51
Classe energetica
A4
Stato Immobile
Nuovo
Grado
Signorile
Posizione
Centro
Panorama
Vista Giardino
Orientamento
Nord
Lati Liberi
2
Giardino
Privato
Arredi
Non Arredato
Tipo Soggiorno
Soggiorno
Tipo Cucina
A Vista
Riscaldamento
Autonomo
Tipo Riscaldam.
Pompa di Calore
Tipo Impianto
Pavimento
Fonte Energetica
Metano
Acqua Calda
Autonoma
Raffrescamento
Predisposizione
Infissi
PVC Triplo Vetro
Serramenti
Nuovo
Persiana
Oscurante PVC
Pavim. Giorno
Gres Porcellanato
Pavim. Notte
Gres Porcellanato
Pavim. Cucina
Gres Porcellanato
Pavim. Bagno
Gres Porcellanato
Accessori
Impianto Fotovoltaico, Passaggio Pedonale, Porta Blindata, Rete Dati, Tripli Vetri, Veranda, Video Citofono, Zanzariere
Planimetrie
PIANO TERRA
PRIMO PIANO
Ufficio di SAN MARTINO IN RIO
STUDIO 98 srl
Via di S.Rocco, 9
42018 San Martino In Rio RE
Ufficio di CAMPOGALLIANO
STUDIO 98 srl
Piazza Vittorio Emanuele II, 23
41011 Campogalliano MO
Ufficio di CORREGGIO
STUDIO 98 srl
Corso Mazzini, 22/B
42015 Correggio RE
Ufficio di CARPI
STUDIO 98 srl
Viale Cavallotti, 10
41012 Carpi MO
Cookie preference