S30 LABORATORIO CON ABITAZIONE


450.000 €
400 m2
2 Camere
2 Bagni
CARPI : In un' ottima zona della città, L' IMMOBILIARE SANT' ORSOLA ti propone un immobile indipendente libero su 4 lati, con spazio esterno esclusivo e struttura ideale per unire attività e residenza.
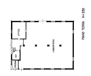
La soluzione si sviluppa su due livelli : al piano terra troviamo una zona laboratorio attualmente adibita a maglieria, doppio ingresso comodo per carico/scarico, front office per accoglienza clienti o gestione operativa.
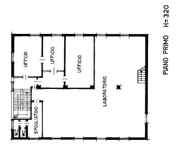
Salendo al primo piano troviamo tre uffici, ulteriore area laboratorio, spogliatoio e bagno.
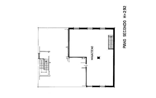
Al secondo piano si sviluppa un appartamento di ampie metrature, perfetto come abitazione o ulteriore spazio direzionale.
Soluzione unica nel suo genere, ideale per chi cerca indipendenza, funzionalità e una posizione comoda e ben servita.

Per tutte le altre informazioni e per prendere appuntamento per visionare l’immobile contattaci ai numeri 0522- 1476286 oppure 392 2272358 IMMOBILIARE SANT’ORSOLA – FILIALE SAN MARTINO IN RIO

FATTI GUIDARE ATTRAVERSO LE NOSTRE AMPIE OFFERTE DI IMMOBILI!
Siamo presenti su tutti i migliori portali immobiliari, naviga sul nostro sito www.immobiliaresantorsola.it potrai scegliere tra le nostre proposte in paesi diversi!

AGENTI PREPARATI E PROFESSIONALI
Affidati a noi! Sarai accolto da esperienza e cortesia, caratteristiche che ci vengono riconosciuti da oltre 20 anni sul territorio. La scelta della propria casa è importante, prenditi tutto il tempo che ti serve, noi saremo sempre al tuo fianco ad assisterti.

PROFESSIONISTI E TECNICI AL TUO SERVIZIO
BONUS FISCALI? Non ti preoccupare, lasciati guidare da professionisti che collaborano con noi da anni. Saranno a tua disposizione attraverso anche dei preventivi gratuiti.

MUTUI
Hai bisogno di un MUTUO? Collaboriamo con le migliori Banche del territorio, oltre che con dei veri professionisti del settore che sapranno indicarti la strada giusta per ottenere fino al 100% del valore della casa che hai scelto.

ASSISTENZA
Siamo con te fino al rogito , ma anche DOPO. Sempre disponibili per nuove consulenze e per consigliarti su come risolvere qualsiasi problema legati a una futura compravendita.

Il presente annuncio non costituisce vincolo contrattuale.
Caratteristiche principali
Codice
S30
Città
Carpi
Categoria
Laboratorio
Locali
10
Camere
2
Bagni
2
Mq
400
Classe energetica
G
Stato Immobile
Come da Origini
Grado
Medio
Posizione
Centro
Panorama
Vista Giardino
Lati Liberi
4
Giardino
Privato
Arredi
Possibilità
Tipo Soggiorno
Doppio
Tipo Cucina
Abitabile
Riscaldamento
Autonomo
Tipo Riscaldam.
Caldaia
Tipo Impianto
Radiatori
Serramenti
Mediocre
Persiana
Tapparella PVC
Pavim. Giorno
Ceramica
Pavim. Notte
Ceramica
Pavim. Cucina
Ceramica
Pavim. Bagno
Ceramica
Pavimento
Ceramica
Accessori
Doppi Vetri, Passaggio Pedonale
Planimetrie
PIANO TERRA
PIANO PRIMO
PIANO SECONDO
Ufficio di SAN MARTINO IN RIO
STUDIO 98 srl
Via di S.Rocco, 9
42018 San Martino In Rio RE
Ufficio di CAMPOGALLIANO
STUDIO 98 srl
Piazza Vittorio Emanuele II, 23
41011 Campogalliano MO
Ufficio di CORREGGIO
STUDIO 98 srl
Corso Mazzini, 22/B
42015 Correggio RE
Ufficio di CARPI
STUDIO 98 srl
Viale Cavallotti, 10
41012 Carpi MO
Cookie preference