M175 Fascino Liberty nel cuore di Modena


590.000 €
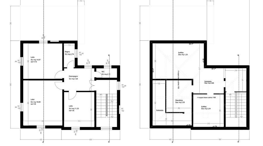
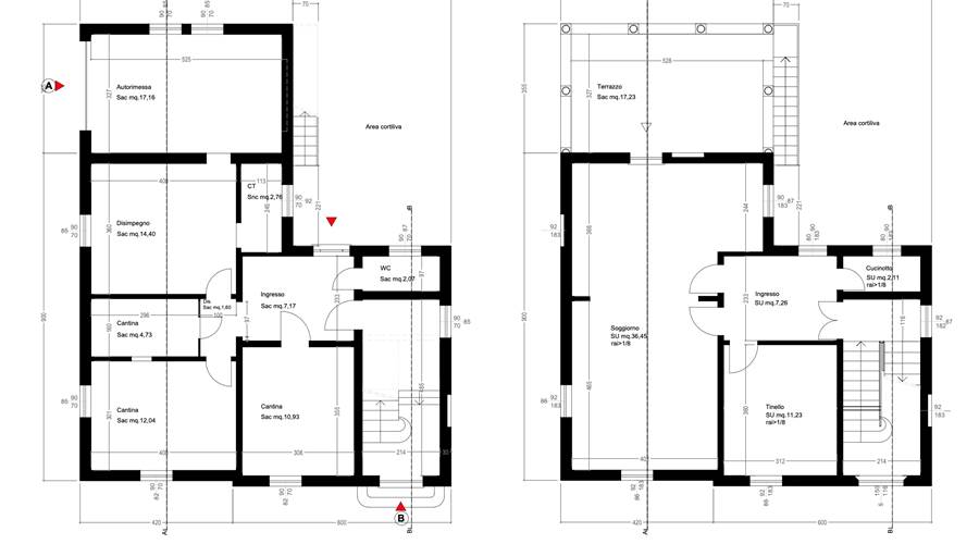
330 m2
3 Camere
3 Bagni
1 Box
Nel centro storico di Modena, villa indipendente in stle Liberty di circa 330 mq. distribuita su tre livelli e circondata da area cortiliva privata su quattro alti. La proprietà conserva preziosi dettagli architettonici originali, espressione di un'eleganza senza tempo. Da ristrutturare, rappresenta un'opportunità unica per realizzare una residenza esclusiva o un progetto di prestigio.

Per tutte le altre informazioni e per appuntamenti per visionare l’immobile contattaci al numero 328.9683996
IMMOBILIARE SANT’ORSOLA – FILIALE DI MODENA
FATTI GUIDARE ATTRAVERSO LE NOSTRE AMPIE OFFERTE DI IMMOBILI!
Siamo presenti su tutti i migliori portali immobiliari, naviga sul nostro sito www.immobiliaresantorsola.it potrai scegliere tra le nostre proposte in paesi diversi!

AGENTI PREPARATI E PROFESSIONALI
Affidati a noi! Sarai accolto da esperienza e cortesia, caratteristiche che ci vengono riconosciuti da oltre 20 anni sul territorio. La scelta della propria casa è importante, prenditi tutto il tempo che ti serve, noi saremo sempre al tuo fianco ad assisterti.

PROFESSIONISTI E TECNICI AL TUO SERVIZIO
BONUS FISCALI? Non ti preoccupare, lasciati guidare da professionisti che collaborano con noi da anni. Saranno a tua disposizione attraverso anche dei preventivi gratuiti.

MUTUI
Hai bisogno di un MUTUO? Collaboriamo con le migliori Banche del territorio, oltre che con dei veri professionisti del settore che sapranno indicarti la strada giusta per ottenere fino al 100% del valore della casa che hai scelto.

ASSISTENZA
Siamo con te fino al rogito, ma anche DOPO. Sempre disponibili per nuove consulenze e per consigliarti su come risolvere qualsiasi problema legati a una futura compravendita.

Il presente annuncio non costituisce vincolo contrattuale.
Caratteristiche principali
Codice
M175
Città
Modena (Università/Policlinico)
Categoria
Villa
Locali
20
Camere
3
Bagni
3
Mq
330
Box
1
Balconi
1
Classe energetica
G
Stato Immobile
Da Ristrutturare
Grado
Signorile
Posizione
Centro
Panorama
Vista Aperta
Orientamento
Nord Ovest Sud Est
Lati Liberi
4
Giardino
Privato
Arredi
Non Arredato
Tipo Soggiorno
Doppio
Tipo Cucina
Abitabile
Riscaldamento
Autonomo
Tipo Riscaldam.
Caldaia
Tipo Impianto
Radiatori
Fonte Energetica
Metano
Acqua Calda
Autonoma
Raffrescamento
No
Infissi
Legno
Serramenti
Da Sostituire
Persiana
Tapparella Legno
Pavim. Giorno
Personalizzato
Pavim. Notte
Personalizzato
Pavim. Cucina
Personalizzato
Pavim. Bagno
Personalizzato
Accesso Disabili
No
Isolamento termico
Nessuno
Isolamento acustico
Nessuno
Accessori
Passaggio Automobilistico, Ripostiglio
Mappa
viale Moreali , Modena (MO)
Ufficio di SAN MARTINO IN RIO
STUDIO 98 srl
Via di S.Rocco, 9
42018 San Martino In Rio RE
Ufficio di CAMPOGALLIANO
STUDIO 98 srl
Piazza Vittorio Emanuele II, 23
41011 Campogalliano MO
Ufficio di CORREGGIO
STUDIO 98 srl
Corso Mazzini, 22/B
42015 Correggio RE
Ufficio di CARPI
STUDIO 98 srl
Viale Cavallotti, 10
41012 Carpi MO
Cookie preference