M173 Appartamento in centro storico


310.000 €
91 m2
2 Camere
1 Bagni
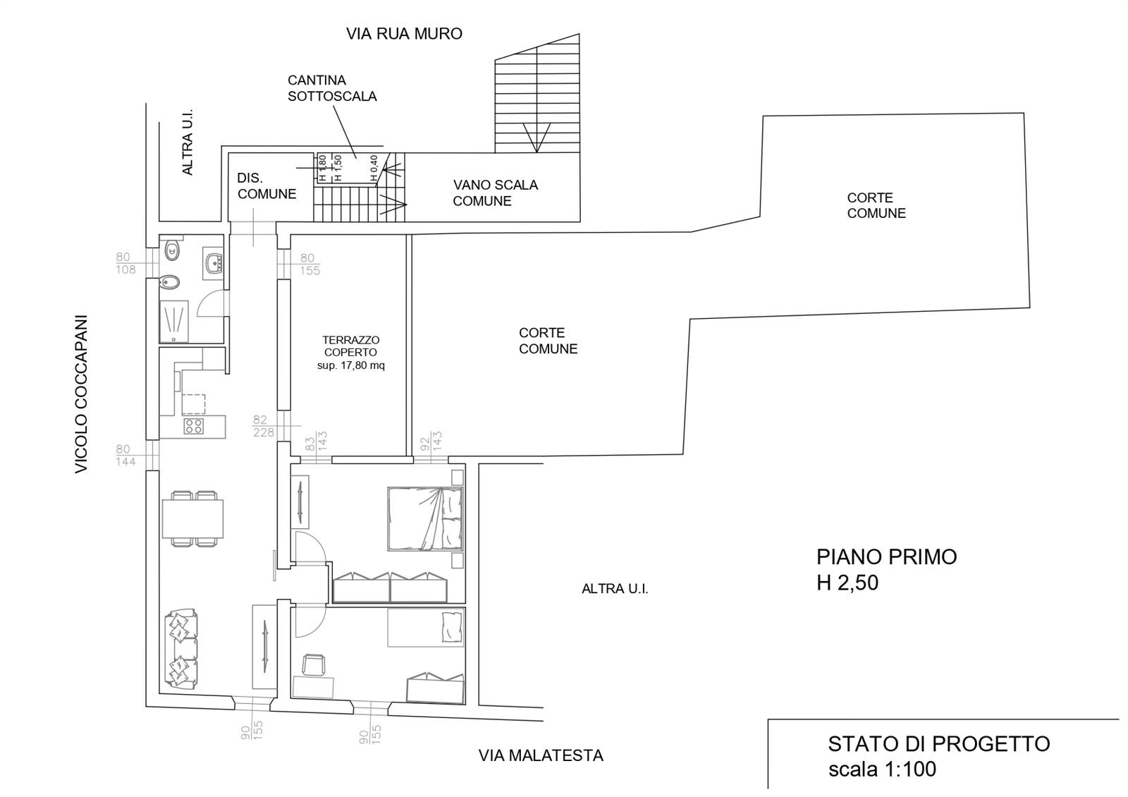
Immobiliare Sant'Orsola propone in contesto signorile, appartamento in fase di ristrutturazione - chiavi in mano- sito in centro storico. L'alloggio si sviluppa al piano nobile ed è composto da ingresso in corridoio con affaccio su AMPIO TERRAZZO, rarità in centro storico, bagno finestrato, cucinotto, sala e 2 camere da letto. Le immagini presentate costituiscono una possibilità di progetto finito, sono indicative e le finiture sono personalizzabili.
L'immobile è accessoriato di solaio e ripostiglio. Utenze autonome e basse spese condominiali.

Per tutte le altre informazioni e per appuntamenti per visionare l’immobile contattaci al numero 059.4725927
IMMOBILIARE SANT’ORSOLA – FILIALE DI MODENA

FATTI GUIDARE ATTRAVERSO LE NOSTRE AMPIE OFFERTE DI IMMOBILI!
Siamo presenti su tutti i migliori portali immobiliari, naviga sul nostro sito www.immobiliaresantorsola.it potrai scegliere tra le nostre proposte in paesi diversi!

AGENTI PREPARATI E PROFESSIONALI
Affidati a noi! Sarai accolto da esperienza e cortesia, caratteristiche che ci vengono riconosciuti da oltre 20 anni sul territorio. La scelta della propria casa è importante, prenditi tutto il tempo che ti serve, noi saremo sempre al tuo fianco ad assisterti.

PROFESSIONISTI E TECNICI AL TUO SERVIZIO
BONUS FISCALI? Non ti preoccupare, lasciati guidare da professionisti che collaborano con noi da anni. Saranno a tua disposizione attraverso anche dei preventivi gratuiti.

MUTUI
Hai bisogno di un MUTUO? Collaboriamo con le migliori Banche del territorio, oltre che con dei veri professionisti del settore che sapranno indicarti la strada giusta per ottenere fino al 100% del valore della casa che hai scelto.

ASSISTENZA
Siamo con te fino al rogito, ma anche DOPO. Sempre disponibili per nuove consulenze e per consigliarti su come risolvere qualsiasi problema legati a una futura compravendita.

Il presente annuncio non costituisce vincolo contrattuale.
Caratteristiche principali
Codice
M173
Città
Modena
Categoria
Appartamento
Spese condominiali
600 € / anno
Locali
5,5
Camere
2
Bagni
1
Mq
91
Terrazzi
1
mq Terrazzo
19
Piano
1
Classe energetica
G
Stato Immobile
Da Ristrutturare
Grado
Medio
Posizione
Centro Storico
Lati Liberi
3
Arredi
Non Arredato
Tipo Soggiorno
Soggiorno
Tipo Cucina
Cucinotto
Riscaldamento
Autonomo
Tipo Riscaldam.
Caldaia
Tipo Impianto
Termosifoni
Fonte Energetica
Metano
Acqua Calda
Autonoma
Raffrescamento
No
Infissi
Legno
Serramenti
Discreto
Persiana
Persiana Legno
Pavim. Giorno
Graniglia
Pavim. Notte
Graniglia
Pavim. Cucina
Ceramica
Pavim. Bagno
Ceramica
Mappa
via rua del muro , Modena (MO)
Ufficio di SAN MARTINO IN RIO
STUDIO 98 srl
Via di S.Rocco, 9
42018 San Martino In Rio RE
Ufficio di CAMPOGALLIANO
STUDIO 98 srl
Piazza Vittorio Emanuele II, 23
41011 Campogalliano MO
Ufficio di CORREGGIO
STUDIO 98 srl
Corso Mazzini, 22/B
42015 Correggio RE
Ufficio di CARPI
STUDIO 98 srl
Viale Cavallotti, 10
41012 Carpi MO
Cookie preference