C84 Spazioso appartamento centro storico


115.000 €
109 m2
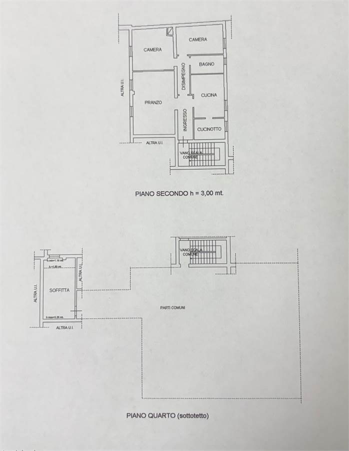
In contesto signorile posto in pieno centro Immobiliare Sant'Orsola propone ampio e comodo appartamento, DA RISTRUTTURARE, posto al piano secondo con ascensore composto da ingresso, sala da pranzo, cucina, cucinotto, bagno e due camere da letto matrimoniali. Completo di soffitta.

Le immagini proposte sono a scopo illustrativo: un'idea di stile e risultato che si può raggiungere con il giusto progetto su misura!

Per tutte le altre informazioni e per appuntamenti per visionare l’immobile contattaci al numero 059.6137106
IMMOBILIARE SANT’ORSOLA – FILIALE DI CAMPOGALLIANO

FATTI GUIDARE ATTRAVERSO LE NOSTRE AMPIE OFFERTE DI IMMOBILI!
Siamo presenti su tutti i migliori portali immobiliari, naviga sul nostro sito www.immobiliaresantorsola.it potrai scegliere tra le nostre proposte in paesi diversi!

AGENTI PREPARATI E PROFESSIONALI
Affidati a noi! Sarai accolto da esperienza e cortesia, caratteristiche che ci vengono riconosciuti da oltre 20 anni sul territorio. La scelta della propria casa è importante, prenditi tutto il tempo che ti serve, noi saremo sempre al tuo fianco ad assisterti.

PROFESSIONISTI E TECNICI AL TUO SERVIZIO
BONUS FISCALI? Non ti preoccupare, lasciati guidare da professionisti che collaborano con noi da anni. Saranno a tua disposizione attraverso anche dei preventivi gratuiti.

MUTUI
Hai bisogno di un MUTUO? Collaboriamo con le migliori Banche del territorio, oltre che con dei veri professionisti del settore che sapranno indicarti la strada giusta per ottenere fino al 100% del valore della casa che hai scelto.

ASSISTENZA
Siamo con te fino al rogito, ma anche DOPO. Sempre disponibili per nuove consulenze e per consigliarti su come risolvere qualsiasi problema legati a una futura compravendita.

Il presente annuncio non costituisce vincolo contrattuale.
Caratteristiche principali
Codice
C84
Città
Carpi
Categoria
Appartamento
Locali
5,5
Mq
109
Piano
2
Classe energetica
F
Stato Immobile
Come da Origini
Grado
Signorile
Mappa
via trento trieste 99, Carpi (MO)
Ufficio di SAN MARTINO IN RIO
STUDIO 98 srl
Via di S.Rocco, 9
42018 San Martino In Rio RE
Ufficio di CAMPOGALLIANO
STUDIO 98 srl
Piazza Vittorio Emanuele II, 23
41011 Campogalliano MO
Ufficio di CORREGGIO
STUDIO 98 srl
Corso Mazzini, 22/B
42015 Correggio RE
Ufficio di CARPI
STUDIO 98 srl
Viale Cavallotti, 10
41012 Carpi MO
Cookie preference